Inaugure
Architecture & Design
. Pixérécourt.
Rénovation d’un appartement familial
Superficie: 85 m² au sol
2024-2025
Paris 20
Superficie: 85 m² au sol
2024-2025
Paris 20



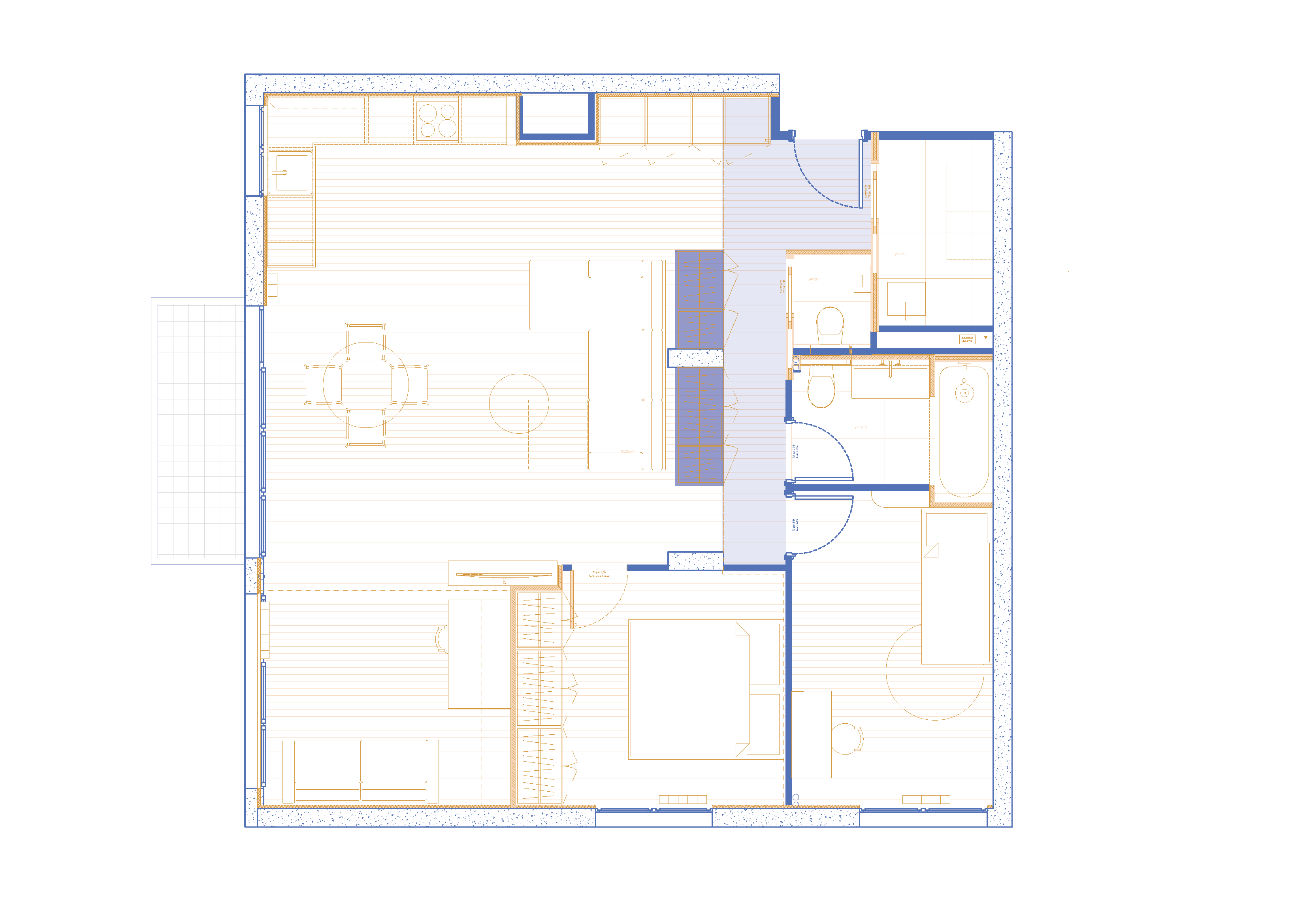
C’est l’histoire d’un appartement à la vue sublime, mais dans un état de dégradation extrême : murs fissurés, moquettes jaunies et usées, carrelages amiantés. À cela s’ajoutaient une circulation en couloir, une cuisine séparée du salon et une entrée disproportionnée.
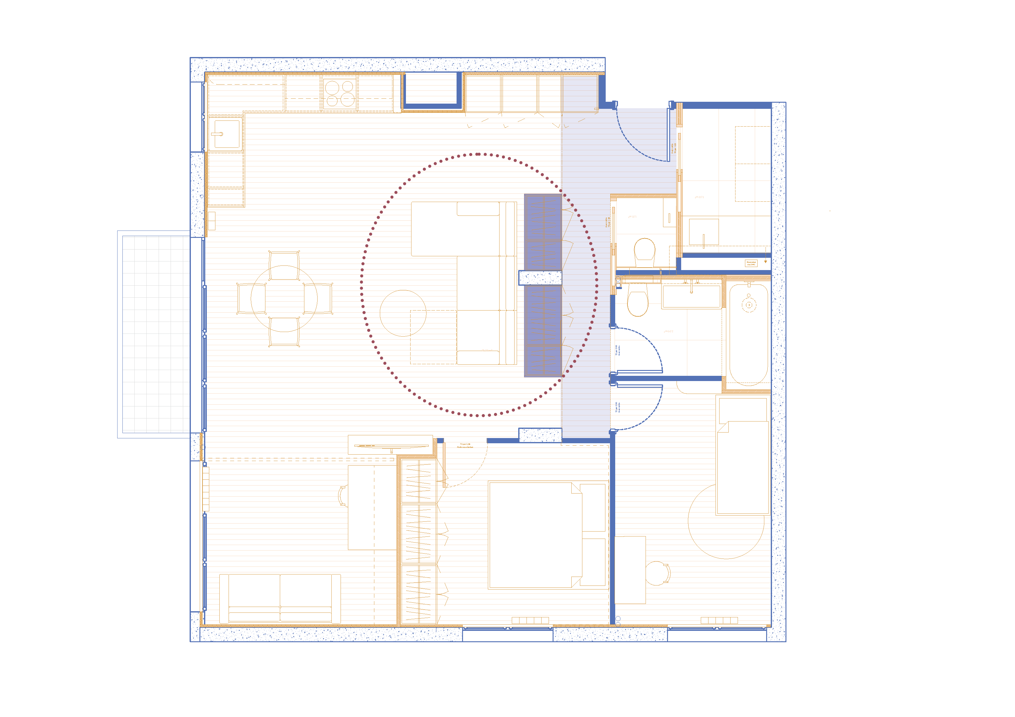
Une rénovation profonde s’imposait. Les cloisons sont ouvertes, le couloir disparaît au profit d’un grand meuble central autour duquel s’organisent les accès aux chambres, aux WC et à la salle de bain. Ce n’est plus un couloir, mais un volume rangement et miroir autour duquel on tourne et qui permettra, si les propriétaires le souhaitent, de desservir une chambre supplémentaire à l’avenir, actuellement aménagée en bureau ouvert sur le salon.
La vue époustouflante se reflète désormais dans le grand miroir, offrant une seconde perspective sur tout Paris et au-delà. Les teintes froides dominent, principalement un bleu choisi pour faire écho à la part immense de ciel qui enveloppe cet appartement perché.





















Photos @ C. Baeyaert
